Image
YÜKLENİYOR
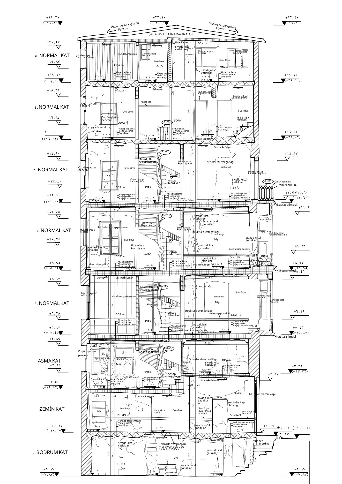
  • 🏷️ Aksaray Rölöve
  • 📍 Aksaray/İstanbul
  • 📅 2022
  • 📐 250m2
  • 📌 Tamamlandı.

Proje Açıklaması

Aksaray’da yer alan bu rölöve projesi, kültürel mirasın belgelenmesi ve korunmasına yönelik kapsamlı bir çalışma olarak gerçekleştirilmiştir. Yapının tarihî ve mimari değerleri dikkate alınarak, mevcut durumunun detaylı olarak analiz edilmesi hedeflenmiştir. Bu doğrultuda, yapıdaki tüm mimari öğeler ölçülmüş, belgelenmiş ve çizimlerle desteklenerek rölöve planları hazırlanmıştır.

Çalışma sürecinde; plan, kesit ve görünüş çizimlerinin yanı sıra malzeme dokuları, yapısal bozulmalar ve dönemsel ekler detaylı biçimde kayıt altına alınmıştır. Belgeleme süreci hem dijital araçlarla hem de yerinde yapılan gözlemlerle desteklenmiş; yapının özgün kimliğine saygılı bir yaklaşım benimsenmiştir.